Ihr Wohntraum in der Südsteiermark! – Stilvolles Einfamilienhaus in sonniger Ruhelage von Straß zum unschlagbaren Preis!
Beschreibung
Dieses charmante, lichtdurchflutete Einfamilienhaus mit rund 133,4 m² Wohnfläche und 800 m² Grundstücksfläche vereint modernes Wohnen, hochwertige Ausstattung und pure Lebensqualität – eingebettet in die idyllische Landschaft der Südsteiermark.
Hier wohnen Sie dort, wo andere Urlaub machen: umgeben von Weinbergen, Sonne und einer ruhigen, gepflegten Nachbarschaft, die Entspannung und Geborgenheit ausstrahlt.
Raumaufteilung und Wohnkonzept
Das Haus wurde mit viel Liebe zum Detail geplant und bietet auf drei Etagen ein durchdachtes Wohnkonzept, das Familien ebenso begeistert wie Paare mit Anspruch an Raum, Komfort und Qualität.
Erdgeschoss – der Mittelpunkt des Lebens
Der großzügige, offene Wohn- und Essbereich bildet das Herzstück dieses Hauses. Große Fensterfronten schaffen eine helle, freundliche Atmosphäre und ermöglichen den direkten Zugang auf die sonnige Terrasse und in den liebevoll angelegten Garten – perfekt für entspannte Stunden im Freien.
Die moderne Küche fügt sich harmonisch in das Wohnkonzept ein und bietet ausreichend Platz für gemeinsames Kochen und Genießen. Ein gepflegtes Badezimmer mit WC, ein Vorraum sowie der Zugang zur Garage runden das Raumangebot im Erdgeschoss ab.
Obergeschoss – Rückzugsort mit Weitblick
Im Obergeschoss erwarten Sie vier helle, gut geschnittene Zimmer, die sich flexibel als Schlafzimmer, Kinderzimmer, Homeoffice oder Gästezimmer nutzen lassen. Der großzügige Vorraum sorgt für ein angenehmes Raumgefühl, während das zweite Bad mit WC und der Balkon mit Blick ins Grüne die Etage perfekt ergänzen.
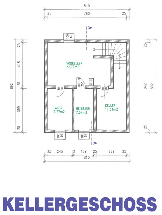
Kellergeschoss – Platz für Ihre Ideen
Das vollständig unterkellerte Haus bietet vielfältige Nutzungsmöglichkeiten. Ein Vorkeller, Hauptkeller, Heizraum sowie ein weiterer Lagerraum schaffen reichlich Stauraum – ideal für Hobby, Fitness oder als Werkstattbereich.
Ausstattung und Highlights auf einen Blick
-
Wohnfläche: ca. 133,4 m²
-
Grundstücksgröße: ca. 800 m²
-
3 Etagen (Erdgeschoss, Obergeschoss, Keller)
-
4 Schlafzimmer, 2 Badezimmer, offene Küche
-
Hochwertiger Parkettboden und gepflegte Sanitärräume
-
Große Fensterflächen für helle, freundliche Räume
-
Terrasse, Balkon und Garten mit Wohlfühlcharakter
-
Garage im Haus integriert
-
Massive Bauweise und sehr gepflegter Gesamtzustand
-
Ruhige und sonnige Lage in Straß – ideal für Familien
-
Vollunterkellert mit viel zusätzlichem Stauraum
Lage – Wohnen mit Lebensqualität
Straß in der Südsteiermark steht für Lebensfreude, Natur und eine einzigartige Balance zwischen Ruhe und Anbindung. Hier genießen Sie die Sonne der Südsteiermark, umgeben von Weinbergen und sanften Hügeln, während Leibnitz und die Autobahnauffahrt nur wenige Minuten entfernt sind. Einkaufsmöglichkeiten, Schulen, Ärzte und Gastronomie befinden sich in bequemer Reichweite.
Die Region ist bekannt für ihre hohe Lebensqualität, regionale Kulinarik und ihre Nähe zu Slowenien, Graz und den beliebten Weinstraßen – ideal für alle, die Natur, Kultur und Komfort verbinden möchten.
Fazit – Ein Zuhause zum Ankommen und Wohlfühlen
Dieses Einfamilienhaus ist mehr als nur eine Immobilie – es ist ein Ort zum Leben, Lachen und Ankommen. Mit seiner hochwertigen Ausstattung, der sonnigen Südsteiermark-Lage und dem großzügigen Grundstück bietet es alles, was man sich von einem modernen Zuhause wünscht.
Ob als Familienresidenz, Rückzugsort im Grünen oder langfristige Wertanlage – hier erwartet Sie ein Zuhause mit Zukunft und Seele.
Vereinbaren Sie jetzt einen Besichtigungstermin und lassen Sie sich von diesem besonderen Haus persönlich begeister
Wir weisen darauf hin, dass zwischen dem Vermittler und dem zu vermittelnden Dritten ein familiäres oder wirtschaftliches Naheverhältnis besteht.
Der Vermittler ist als Doppelmakler tätig.
Infrastruktur
und Entfernungen
Sie haben Interesse?
Kontaktieren Sie uns jetzt – wir beantworten gerne all Ihre Fragen rund um unsere Immobilienangebote. Auf Wunsch vereinbaren wir einen individuellen Besichtigungstermin, damit Sie sich selbst vor Ort ein Bild machen können.


Diese Immobilie ist vergeben – Ihre wartet vielleicht schon.
Wir freuen uns, dass wir diese Immobilie erfolgreich vermitteln konnten.
Doch vielleicht wartet Ihre Traumimmobilie bereits auf Sie! Werfen Sie gerne einen Blick auf unsere aktuellen Angebote.

















