Steirische Apfelstraße nähe Weiz! LUXURIÖSES ANWESEN MIT ATEMBERAUBENDEN PANORAMABLICK!!!
Beschreibung
Willkommen in Ihrem neuen Traumhaus in der malerischen Gemeinde Neudorf bei Sankt Ruprecht an der Raab in der wunderschönen Steiermark. Diese beeindruckende Liegenschaft bietet Ihnen auf 292 m² Wohnfläche genügend Platz für Sie und Ihre Familie.
Lassen Sie sich von dieser malerischen Umgebung verzaubern, das Objekt liegt direkt in der Apfelstraße mit einem atemberaubenden Panoramablick.
Dieses luxuriöses Zweifamilienhaus wurde 1990 erbaut und 2021/ 2022 komplett und aufwendig saniert bzw. dazu gebaut. Das Objekt eignet sich hervorragend auch für 2 Familien, es gibt einen Haupteingang, zwei Nebeneingänge EG-OG,
die Heizung und der Strom sind pro Geschoss separiert.
Bei der Ausstattung wurde besonders auf hochwertige Qualität und moderne Architektur viel Wert gelegt, hier können Sie sofort einziehen und sich in Ihrem neuen Zuhause wohlfühlen, die gesamte Einrichtung wäre im Kaufpreis inkludiert.
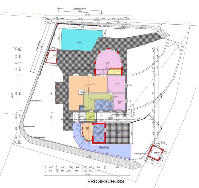
Die Villa verfügt über insgesamt 9 großzügig geschnittene Räume, welche Ihnen und Ihrer Familie ausreichend Platz für individuelle Gestaltungsmöglichkeiten bieten. Der offene Wohn- und Essbereich ist der perfekte Ort, um gemeinsame Stunden zu verbringen und bietet dank der bodentiefen Fenster einen atemberaubenden Ausblick auf die umliegende Landschaft.
Keller- 129,33 m², bestehend aus 3 Garagenplätzen, Waschraum, Küche, Dusche, Lagerräume und Technikraum.
Erdgeschoss- 152,99 m², bestehend aus Küche, Wohn-Essbereich, 3 Schlafzimmer, Bad, WC, Büro.
Obergeschoss - 138,30 m²,hier ist noch vieles möglich und kann nach Ihren Wünschen frei gestaltet werden.
Im EG dürfen Sie sich in der Wellnessoase bestehend aus einer Sauna, Dusche und einem Ruheraum entspannen und verwöhnen lassen.
Der traumhafte Garten bietet Ihnen die Möglichkeit warme Sommertage im Freien zu genießen und lädt zum Entspannen und Verweilen ein. Für die richtige Abkühlung und einen unvergesslichen Badespaß für Jung und Alt sorgt der Süd-West-seitige Pool von ca. 45 m², sowie ein Poolhaus.
Für Ihre Fahrzeuge stehen Ihnen 2 große Garagen sowie ein überdachter Autoabstellplatz zur Verfügung, so dass Sie sich keine Gedanken über Parkmöglichkeiten machen müssen.
Das Haus besticht nicht nur durch seine Innenausstattung, sondern auch durch seine Lage und einem wunderschönen Ausblick. Egal ob vom Balkon, der Terrasse oder dem Garten aus, Sie werden immer einen beeindruckenden Fernblick über die grüne Landschaft und die Obstberge genieße können.
Die Verkehrsanbindung ist dank der nahegelegenen Bushaltestelle optimal und ermöglicht Ihnen eine schnelle und bequeme Anreise in die umliegenden Städte. Auch eine Schule befindet sich in unmittelbarer Nähe, so dass Ihre Kinder eine kurze Anfahrt haben.
Zögern Sie nicht und sichern Sie sich jetzt Ihr eigenes Stück vom Paradies. Diese Immobilie ist nicht nur ein Haus, sondern ein Ort, an dem Sie sich rundum wohlfühlen und viel Privatsphäre genießen werden. Vereinbaren Sie noch heute einen Besichtigungstermin und machen Sie den ersten Schritt, um Ihr Traumhaus zu besitzen. Ich freue mich darauf, Sie kennen zu lernen und Ihnen diese einzigartige Liegenschaft zu präsentieren.
Der Vermittler ist als Doppelmakler tätig.
Infrastruktur
und Entfernungen
Sie haben Interesse?
Kontaktieren Sie uns jetzt – wir beantworten gerne all Ihre Fragen rund um unsere Immobilienangebote. Auf Wunsch vereinbaren wir einen individuellen Besichtigungstermin, damit Sie sich selbst vor Ort ein Bild machen können.


Diese Immobilie ist vergeben – Ihre wartet vielleicht schon.
Wir freuen uns, dass wir diese Immobilie erfolgreich vermitteln konnten.
Doch vielleicht wartet Ihre Traumimmobilie bereits auf Sie! Werfen Sie gerne einen Blick auf unsere aktuellen Angebote.


















































