Köflach! Barrierefreies neuwertiges Wohnhaus in Holzmassivbauweise in sonniger Lage!
Beschreibung
Köflach: Ein modernes barrierefreies Holzmassivhaus in sonniger Lage!
Das malerische Städtchen Köflach in der Steiermark ist bekannt für seine reizvolle Landschaft und seine zahlreiche Freizeitmöglichkeiten. In dieser idyllischen Umgebung steht ein modernes Holzmassivhaus, das durch sein durchdachtes Design und seine energieeffizienten Eigenschaften besticht.
Lage und Grundstück
Das Haus befindet sich in einer sonnigen Lage auf einem Grundstück von 3.081 m². Die zentrale Position ermöglicht nicht nur einen atemberaubenden Blick auf die umliegenden Berge, sondern auch eine hervorragende Anbindung an die wichtigsten Infrastrukturangebote der Region. In der Nähe befinden sich die Therme Nova und das Gestüt Piber, die sowohl Einheimischen als auch Besuchern vielfältige Möglichkeiten zur Erholung und Freizeitgestaltung bieten.
Architektur und Ausstattung
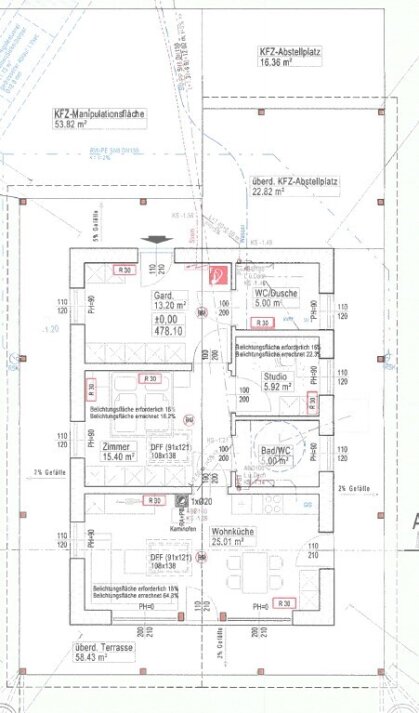
Mit einer Wohnfläche von 70 m² bietet das Haus ausreichend Platz für ein komfortables Wohngefühl. Es ist optimal in drei Zimmer gegliedert, die flexibel als Schlafräume, Arbeitszimmer oder Gästezimmer genutzt werden können. Zusätzlich stehen zwei Badezimmer zur Verfügung, die den komfortablen Lebensstil der Bewohner unterstützen.
Ein besonderes Highlight des Hauses ist der integrierte Schwedenofen, der nicht nur für Gemütlichkeit sorgt, sondern auch in Kombination mit einer modernen Infrarotheizung für eine behagliche Wärme sorgt. Diese Kombination ist nicht nur umweltfreundlich, sondern führt auch zu geringen Energiekosten, die in der heutigen Zeit ein wesentlicher Aspekt für nachhaltiges Wohnen sind.
Fazit
Das moderne Holzmassivhaus in Köflach verbindet einen hohen Wohnkomfort mit einer hervorragenden Lage und zeitgemäßen Energiestandards. Die Nähe zu Erholungsorten wie der Therme Nova und dem Gestüt Piber macht es zu einem idealen Ort für Familien, Paare oder Singles, die eine harmonische Balance zwischen Natur und modernem Lebensstil suchen. Ein echtes Traumhaus für all diejenigen, die das Besondere lieben!
Wir weisen darauf hin, dass zwischen dem Vermittler und dem zu vermittelnden Dritten ein familiäres oder wirtschaftliches Naheverhältnis besteht.
Der Vermittler ist als Doppelmakler tätig.
Infrastruktur
und Entfernungen
Sie haben Interesse?
Kontaktieren Sie uns jetzt – wir beantworten gerne all Ihre Fragen rund um unsere Immobilienangebote. Auf Wunsch vereinbaren wir einen individuellen Besichtigungstermin, damit Sie sich selbst vor Ort ein Bild machen können.


Diese Immobilie ist vergeben – Ihre wartet vielleicht schon.
Wir freuen uns, dass wir diese Immobilie erfolgreich vermitteln konnten.
Doch vielleicht wartet Ihre Traumimmobilie bereits auf Sie! Werfen Sie gerne einen Blick auf unsere aktuellen Angebote.






















