Judenburg! TOP Maisonette im Herzen vom Murtal!
Beschreibung
Willkommen in Ihrem neuen Zuhause in Judenburg, einer charmanten Stadt inmitten dem malerischen Murtal in der Steiermark! Diese beeindruckende Maisonette-Wohnung im 4.Stock (mit Lift) bietet Ihnen nicht nur ein modernes und gepflegtes Wohnambiente, sondern auch eine ideale Lebensqualität.
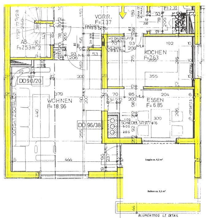
Die Wohnfläche von 92,67 m² verteilt sich auf Vorräume, 2 Bäder/WC´s, fünf helle, freundliche Zimmer, somit eignet sich die Wohneinheit perfekt für Familien oder Paare, die viel Platz suchen. Die durchdachte Raumaufteilung sorgt dafür, dass Sie sich sofort wohlfühlen werden.
Die Immobilie besticht durch hochwertige Ausstattungsmerkmale wie Fliesen und Parkettböden, die sowohl stilvoll als auch pflegeleicht sind. Die Küche ist ein wahres Herzstück, das nicht nur funktional ist, sondern auch zum Kochen und Verweilen einlädt. Genießen Sie entspannte Abende auf Ihrer eigenen Loggia, von dieser Sie einen freien Grünblick in die Natur schweifen lassen können.
Ein weiteres Highlight ist die Tiefgarage, die Ihnen einen sicheren Parkplatz bietet und somit für zusätzlichen Komfort sorgt. Zudem steht Ihnen bei Bedarf ein Wasch- und Trockenraum zur Verfügung.
Die Wohnung ist hervorragend angebunden, in unmittelbarer Nähe finden Sie Busverbindung sowie den Autobahnanschluss, der Ihnen eine schnelle Erreichbarkeit der umliegenden Städte und Regionen ermöglicht. Auch die Infrastruktur lässt keine Wünsche offen – Ärzte, Kindergärten und Supermärkte sind in wenigen Minuten erreichbar.
Zusammengefasst ist diese Maisonette-Wohnung nicht nur ein Ort zum Wohnen, sondern ein Ort zum Leben! Für einen Kaufpreis von € 165.000,- bietet sich hier die Möglichkeit, ein neues Kapitel in Ihrem Leben zu beginnen. Nutzen Sie die Gelegenheit und lassen Sie sich von diesem einzigartigen Angebot begeistern!
Zögern Sie nicht um einen Besichtigungstermin zu vereinbaren!
Wir weisen darauf hin, dass zwischen dem Vermittler und dem zu vermittelnden Dritten ein familiäres oder wirtschaftliches Naheverhältnis besteht.
Der Vermittler ist als Doppelmakler tätig.
Infrastruktur
und Entfernungen
Sie haben Interesse?
Kontaktieren Sie uns jetzt – wir beantworten gerne all Ihre Fragen rund um unsere Immobilienangebote. Auf Wunsch vereinbaren wir einen individuellen Besichtigungstermin, damit Sie sich selbst vor Ort ein Bild machen können.


Diese Immobilie ist vergeben – Ihre wartet vielleicht schon.
Wir freuen uns, dass wir diese Immobilie erfolgreich vermitteln konnten.
Doch vielleicht wartet Ihre Traumimmobilie bereits auf Sie! Werfen Sie gerne einen Blick auf unsere aktuellen Angebote.































