Penthouse in perfekter, ruhiger und sonniger Aussichtslage! Lage, Lage, Lage!
Beschreibung
🌇 Exklusives Penthouse-Maisonette in Graz-Lend – Sonnenlage mit Schlossbergblick!
Perfekte Ruhelage nahe der Mur – Wohnen auf höchstem Niveau über den Dächern von Graz
Objektbeschreibung
Diese außergewöhnliche Penthouse-Maisonette in absoluter Ruhe- und Sonnenlage im beliebten Grazer Bezirk Lend bietet auf rund 140 m² Wohnfläche exklusives Wohnen mit traumhaften Ausblicken, großzügigen Terrassenflächen und perfekter Raumaufteilung über zwei Ebenen.
Die Wohnung ist bequem und barrierefrei über einen Personenaufzug direkt vom Erdgeschoss aus erreichbar. Durch die Maisonette-Bauweise wäre auch ein Sessellift innerhalb der Wohnung problemlos realisierbar – ideal für komfortables Wohnen in jedem Lebensabschnitt.
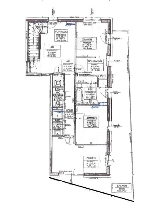
Raumaufteilung
1. Ebene – Erdgeschoss (Schlafebene)
Bereits beim Betreten der Wohnung spürt man das wohnliche Ambiente.
-
Großzügiger Vorraum mit praktischem Abstellraum für Waschmaschine und Trockner
-
Gäste-WC mit Handwaschbecken
-
Modernes Badezimmer mit Dusche
-
Kinderzimmer 1: ca. 17 m²
-
Kinderzimmer 2: ca. 13 m²
-
Elternschlafzimmer: ca. 12 m² mit begehbarem Schrankraum und exklusivem Bad en Suite (Wanne, Dusche, Doppelwaschbecken und WC)
Von allen Schlafzimmern gelangt man auf den umlaufenden Balkon mit ca. 37,5 m², der zum Entspannen einlädt und den Blick ins Grüne freigibt.
2. Ebene – Dachgeschoss (Wohn- und Lebensbereich)
Über eine elegante Treppe gelangt man in den lichtdurchfluteten oberen Wohnbereich:
-
Offener Wohn-Essbereich mit moderner Küche: ca. 45 m²
-
Speis/Abstellraum: ca. 2,4 m²
-
Separates WC: ca. 1,5 m²
Das absolute Highlight ist die atemberaubende Panorama-Terrasse mit rund 88 m², die nach Osten, Süden und Westen ausgerichtet ist – Sonne von früh bis spät garantiert!
Von hier genießen Sie Blicke auf den Grazer Schlossberg mit der Uhrturm-Liesl, den Kalvarienberg und die umliegende Hügellandschaft mit dem Plabutsch – eine Oase über den Dächern der Stadt!
Zusätzliche Ausstattung
-
Kellerabteil: ca. 6 m²
-
Carport-Stellplatz: ca. 17,5 m²
-
Fußbodenheizung, Lift, hochwertige Böden, Panoramafenster, Südterrasse mit Sonne den ganzen Tag
Lage
Die Penthousewohnung befindet sich in einer der begehrtesten Wohngegenden von Graz-Lend, in unmittelbarer Nähe zur Mur. Der Mur-Radweg, zahlreiche Einkaufsmöglichkeiten, Cafés und öffentliche Verkehrsmittel sind in wenigen Minuten erreichbar. Trotz der zentralen Lage genießen Sie hier absolute Ruhe und maximale Privatsphäre.
Lage, Lage, Lage – diese Immobilie vereint städtisches Leben mit naturnaher Erholung!
Besonderheiten auf einen Blick
-
Penthouse-Maisonette mit Lift direkt in die Wohnung
-
2 Ebenen mit perfekter Raumaufteilung
-
Gesamtwohnfläche: ca. 140 m²
-
Balkon: ca. 37,5 m² + Dachterrasse: ca. 88 m²
-
3 Schlafzimmer + 2 Bäder + 3 WCs
-
Spektakulärer Rundumblick über Graz
-
Ruhelage mit ganztägiger Sonne
-
Barrierefreier Zugang + Sessellift-Möglichkeit
-
Carport + Keller inklusive
Fazit
Dieses Penthouse ist mehr als nur eine Wohnung – es ist ein Ort zum Ankommen, Genießen und Wohlfühlen.
Die Kombination aus Ruhelage, Sonnenlage, Weitblick und urbaner Nähe zur Mur macht dieses Objekt zu einem absoluten Wohnjuwel in Graz-Lend.
Genießen Sie das Beste, was Graz zu bieten hat – in Ihrem neuen Zuhause über den Dächern der Stadt.
Wir weisen darauf hin, dass zwischen dem Vermittler und dem zu vermittelnden Dritten ein familiäres oder wirtschaftliches Naheverhältnis besteht.
Der Vermittler ist als Doppelmakler tätig.
Infrastruktur
und Entfernungen
Sie haben Interesse?
Kontaktieren Sie uns jetzt – wir beantworten gerne all Ihre Fragen rund um unsere Immobilienangebote. Auf Wunsch vereinbaren wir einen individuellen Besichtigungstermin, damit Sie sich selbst vor Ort ein Bild machen können.


Diese Immobilie ist vergeben – Ihre wartet vielleicht schon.
Wir freuen uns, dass wir diese Immobilie erfolgreich vermitteln konnten.
Doch vielleicht wartet Ihre Traumimmobilie bereits auf Sie! Werfen Sie gerne einen Blick auf unsere aktuellen Angebote.
































