Geistthal! Bungalow mit großzügigem Grundstück in toller Sonnenlage!
Beschreibung
Exposé – Einfamilienhaus in toller Sonnenlage!
Objektart: Einfamilienhaus (Bungalow)
Grundstücksfläche: ca. 2.550 m²
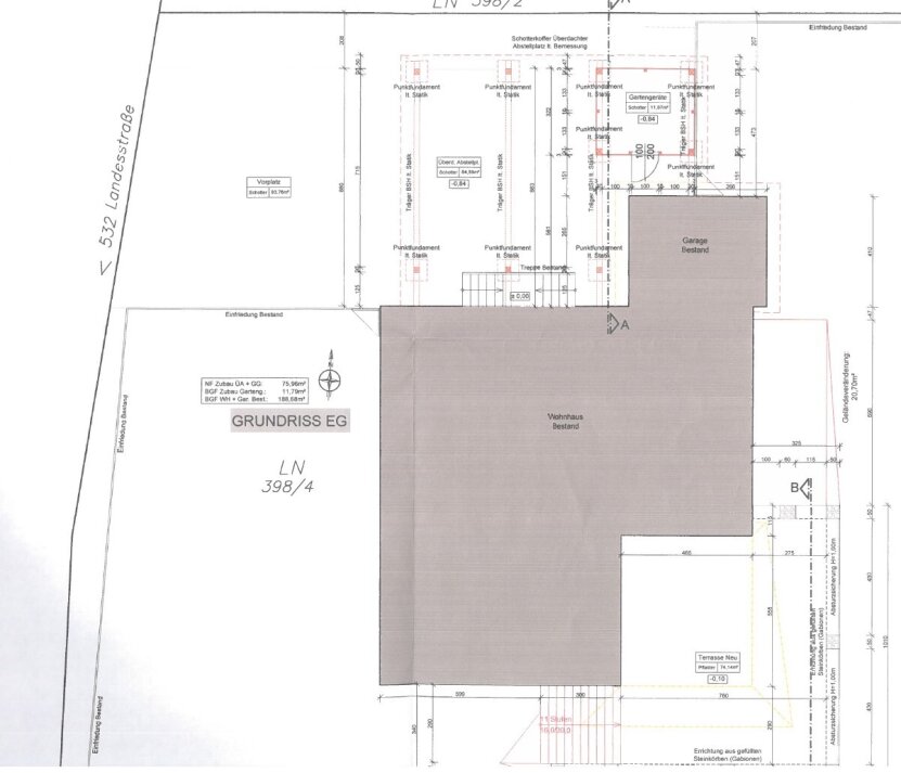
Wohnfläche Erdgeschoss: ca. 134–140 m²
Kellergeschoss: ca. 82 m²
Baujahr: ca. 1972
Zimmer: 5
Garage: ca. 15,5 m²
Heizung: Öl-Zentralheizung (Tank ca. 6.800 Liter)
Dach: Satteldach
Zustand: gepflegt, mit leichten kosmetischen Adaptierungen
Lage & Umgebung
Dieses charmante Einfamilienhaus befindet sich in sehr sonniger, familienfreundlicher Lage im Herzen von Geistthal / Södingberg, nahe Stallhofen im Bezirk Voitsberg. Die naturnahe Umgebung bietet eine angenehme Wohnqualität mit guter Infrastruktur im nahen Umfeld.
Objektbeschreibung
Der Bungalow wurde im Jahr 1972 errichtet und verfügt über eine gut durchdachte Raumaufteilung auf einer Ebene. Das Haus ist unterkellert und bietet damit zusätzlich großzügige Lager- und Nutzflächen.
Die Fenster wurden vor etwa 7–8 Jahren erneuert und sind teilweise mit Fliegengitter-Rollläden ausgestattet. Für eine zukünftige energetische Optimierung sind die Fensterbänke und Rollladenkästen bereits für einen möglichen Vollwärmeschutz vorbereitet.
Das Badezimmer sowie die Toilette wurden vor wenigen Jahren modernisiert und befinden sich in sehr gutem Zustand.
Beheizt wird das Objekt mittels Öl-Zentralheizung über Radiatoren. Der Öltank umfasst rund 6.800 Liter, wodurch eine effiziente Versorgung sichergestellt ist.
Außenbereich
-
Großzügige Süd-West-Terrasse mit ca. 74 m², neu errichtet, offiziell genehmigt und bauverhandelt
-
Eine große Carport-Überdachung mit ca. 65 m² ist ebenfalls bereits behördlich bewilligt, jedoch noch nicht errichtet
-
Grüne, sonnige Gartenfläche mit viel Platz für Freizeit, Gemüsebeete oder ein zukünftiges Poolprojekt
Raumaufteilung (Erdgeschoss)
-
Vorraum / Windfang
-
Großzügiger Wohn- & Essbereich
-
Küche
-
5 Zimmer (Schlaf- / Kinder- / Arbeitszimmer flexibel nutzbar)
-
Badezimmer (modernisiert)
-
WC (separat, modernisiert)
Kellergeschoss
-
Mehrere Lager- und Technikräume
-
Werkstatt- / Hobbyflächen nutzbar
Besonderheiten
✅ Ruhige, sonnige Lage
✅ Große Terrassen- und Gartenflächen
✅ Behördlich genehmigte Erweiterungsmöglichkeiten
✅ Modernisierte Sanitärräume
✅ Unterkellerung
✅ Garage vorhanden
Zustand
Das Haus ist bezugsfähig, benötigt jedoch leichte kosmetische Modernisierungen, um es auf heutigen wohnlichen Standard zu heben (z. B. Wandgestaltung, eventuelle Belagserneuerungen).
Besichtigung & Kontakt
Wir laden Sie herzlich ein, dieses vielseitige Einfamilienhaus persönlich kennenzulernen.
Wir freuen uns auf Ihre Anfrage und zeigen Ihnen das Objekt gerne vor Ort!
Wir weisen darauf hin, dass zwischen dem Vermittler und dem zu vermittelnden Dritten ein familiäres oder wirtschaftliches Naheverhältnis besteht.
Der Vermittler ist als Doppelmakler tätig.
Infrastruktur
und Entfernungen
Sie haben Interesse?
Kontaktieren Sie uns jetzt – wir beantworten gerne all Ihre Fragen rund um unsere Immobilienangebote. Auf Wunsch vereinbaren wir einen individuellen Besichtigungstermin, damit Sie sich selbst vor Ort ein Bild machen können.


Diese Immobilie ist vergeben – Ihre wartet vielleicht schon.
Wir freuen uns, dass wir diese Immobilie erfolgreich vermitteln konnten.
Doch vielleicht wartet Ihre Traumimmobilie bereits auf Sie! Werfen Sie gerne einen Blick auf unsere aktuellen Angebote.









































