St. Peter! 5+ Zimmerwohnung mit 2 Terrassen und Tiefgarage in der beliebten Terrassenhaussiedlung Graz!
Beschreibung
Diese großzügige 5-Zimmer-Wohnung mit einer Wohnfläche von beeindruckenden 138,64 m² bietet Ihnen alles, was das Leben komfortabel und angenehm macht. Die Wohnung befindet sich im 1. Stock bzw. von der Fußgängerzone aus gesehen, im Erdgeschoß!
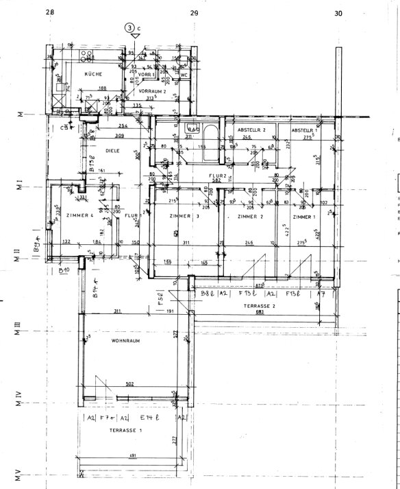
Um in die Wohnung zu gelangen, müssen Sie zuerst die große Diele, die sich vor der Wohnung befindet, betreten. Die eignet sich sehr gut als Garderoberaum und auch als Windfang. Vom Vorraum der Wohnung, erreichen Sie die Gästetoilette mit Waschbecken. Anschließend betreten Sie den Essbereich mit vielen Fenstern. Die Küche und extra das Wohnzimmer sind vom Essvereich begehbar.
Genießen Sie die sonnendurchfluteten Räume dank der optimalen Südausrichtung und erleben Sie entspannte Stunden auf gleich zwei Terrassen – ideal für gemütliche Abende mit Familie und Freunden oder einfach zum Erholen im Freien. Vom Flur aus, erreichen Sie 3 getrennt begehbare Schlafzimmer, wovon eines über einen Schrankraum verfügt! Zwei der Schlafzimmern teilen sich eine weitere Südterrasse! Das Badezimmer beherbergt eine außergewöhnlich große Badewanne! Ein großer Wäscheraum mit Waschmaschinenanschluss und ausreichend Steckdosen ist ebenfalls vom Flur aus begehbar und rundet das Angebot ab! Die Böden sind mit elegantem Parkett und pflegeleichten Fliesen ausgestattet, die eine warme und einladende Atmosphäre schaffen.
Die Lage dieser Wohnung ist ebenso attraktiv wie die Immobilie selbst: Eine hervorragende Verkehrsanbindung durch Bus und Straßenbahn ermöglicht Ihnen eine bequeme Mobilität in Graz und Umgebung. In unmittelbarer Nähe finden Sie alle wichtigen Einrichtungen des täglichen Lebens – Ärzte, Apotheken, Schulen, Kindergärten sowie die Universität. Auch Einkaufsmöglichkeiten wie Supermärkte, Bäckereien und ein Einkaufszentrum sind schnell erreichbar.
Die Wohnung wurde 2021 generalsaniert, samt Installationen sowie in jedem Zimmer extra installierter Internetanschluss. Die DAN-Küche ist auch neuwertig und kann gegen Aufpreis erworben werden. Der perfekte Grundriss und alle getrennt begehbaren Räume überzeugen sofort. Ein Tiefgaragenplatz und ein Kellerabteil (befindet sich in derselben Ebene wie die Wohnung) sind im Kaufpreis inkludiert. Fahrradkeller, Waschmaschine und Trockner mit Münzen, Kinderspielplätze, Besucherparkplatz stehen auch zur Verfügung. Die Lage innerhalb der Fußgängerzone der Terrassenhaussiedlung bietet eine ausgezeichnete Anbindung zur Straßenbahn und Bus! Nahversorger sind in wenigen Minuten fußläufig zu erreichen!
Die monatlichen Betriebskosten betragen aktuell EUR 920,04.- inkl. Heizung, Warmwasser und sämtlicher Abgaben. Die Anlage gilt als architektonische Ikone mit Geschichte und der Kombination aus pulsierendem Stadtleben und naturnahem Wohnen.
Wohnen für Jung und Alt!
Dann zögern Sie nicht und kontaktieren Sie bezüglich eines Besichtigungstermins!
Wir weisen darauf hin, dass zwischen dem Vermittler und dem zu vermittelnden Dritten ein familiäres oder wirtschaftliches Naheverhältnis besteht.
Der Vermittler ist als Doppelmakler tätig.
Infrastruktur
und Entfernungen
Sie haben Interesse?
Kontaktieren Sie uns jetzt – wir beantworten gerne all Ihre Fragen rund um unsere Immobilienangebote. Auf Wunsch vereinbaren wir einen individuellen Besichtigungstermin, damit Sie sich selbst vor Ort ein Bild machen können.


Diese Immobilie ist vergeben – Ihre wartet vielleicht schon.
Wir freuen uns, dass wir diese Immobilie erfolgreich vermitteln konnten.
Doch vielleicht wartet Ihre Traumimmobilie bereits auf Sie! Werfen Sie gerne einen Blick auf unsere aktuellen Angebote.





















