WIEN 10 – RUHIGE WOHNUNG IN SACKGASSE
Beschreibung
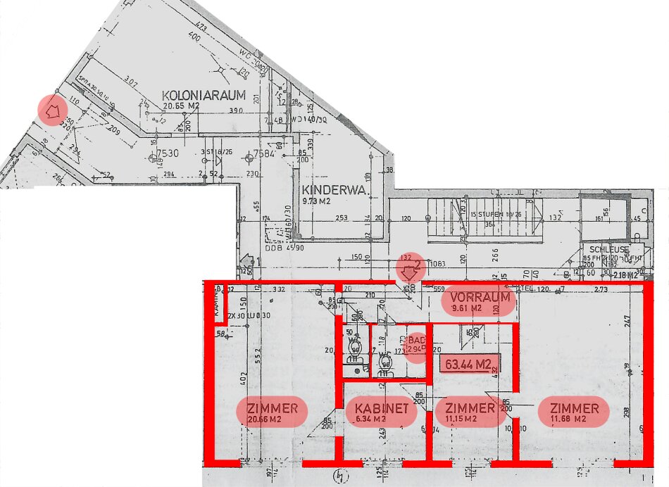
Gepflegte 3-Zimmer-Wohnung mit idealer Aufteilung & 2 WCs
In einer ruhigen Sackstraße im beliebten 10. Wiener Gemeindebezirk erwartet Sie diese gepflegte Erdgeschosswohnung mit südlicher Ausrichtung. Die Lage verbindet viel Grün, ausgezeichnete Infrastruktur und angenehme Ruhe – eine seltene Kombination in der Stadt.
Die Wohnung wird derzeit noch als Ordination genutzt und ist ab 01.07.2026 verfügbar. Dank der durchdachten Raumaufteilung eignet sie sich perfekt als gemütliche Stadtwohnung, Praxis oder Anlegerobjekt.
DIE WOHNUNG AUF EINEN BLICK
- Erdgeschoss – komfortabel erreichbar
- Südliche Ausrichtung – angenehme Lichtverhältnisse
- 3 Zimmer mit guter Raumaufteilung
- 2 große Zimmer zentral vom Vorraum begehbar
- Anschlüsse für Küche im Kabinett vorhanden
- Badezimmer mit WC
- Zusätzliches Gäste-WC
- Fernwärme
- Gepflegter Zustand
- Garagenplatz im Haus anmietbar
Besonders praktisch: Durch die Lage im Erdgeschoss erreichen Sie Lift, Hauseingang, Kinderwagenraum und Keller besonders schnell und bequem.
LEBENSQUALITÄT IM 10. BEZIRK
Der Bezirk Favoriten gehört zu den vielfältigsten Wohnlagen Wiens.
Hier trifft urbanes Leben auf großzügige Grünflächen:
- Die Favoritenstraße zählt zu den längsten Fußgängerzonen Wiens
- Der Kurpark Oberlaa lädt zu Spaziergängen und Erholung ein
- Der Wienerberg bietet Natur, Badeteich und Sportmöglichkeiten
- Der Laaer Wald ist ein weiterer grüner Rückzugsort
Gleichzeitig ist Favoriten ein bedeutender Standort für Bildung und Wirtschaft, u.a. mit der FH Campus Wien und der ÖBB-Zentrale.
INFRASTRUKTUR & VERKEHR
Die Nahversorgung ist ausgezeichnet:
- Supermarkt
- Apotheke
- Bus und Straßenbahn
- Geschäfte des täglichen Bedarfs
Alles bequem zu Fuß erreichbar.
Auch für Autofahrer ideal:
Die umliegenden Straßen sind nicht überparkt, zusätzlich kann ein Tiefgaragenplatz im Haus gemietet werden.
ZUSTAND
Die Wohnung ist gepflegt und gut erhalten.
Lediglich 4 ältere Fenster könnten in Zukunft modernisiert werden – eine überschaubare Investition mit großem Mehrwert.
KURZINFOS
- Gepflegte Wohnung
- 3 Zimmer
- 2 große Zimmer + Kabinett
- 2 Toiletten
- Erdgeschoss
- Fernwärme
- Ruhige Sackgasse
- Sehr gute Infrastruktur
- Garagenplatz zu mieten
- Attraktives Preisniveau
Fazit:
Eine ruhig gelegene, gepflegte Wohnung mit sehr guter Aufteilung, ideal für Eigennutzer, Praxis oder Anleger, in einer Lage mit viel Grün und perfekter Infrastruktur.
Hinweis gemäß Energieausweisvorlagegesetz: Ein Energieausweis wurde vom Eigentümer bzw. Verkäufer, nach unserer Aufklärung über die generell geltende Vorlagepflicht, sowie Aufforderung zu seiner Erstellung noch nicht vorgelegt. Daher gilt zumindest eine dem Alter und der Art des Gebäudes entsprechende Gesamtenergieeffizienz als vereinbart. Wir übernehmen keinerlei Gewähr oder Haftung für die tatsächliche Energieeffizienz der angebotenen Immobilie.
Wir weisen darauf hin, dass zwischen dem Vermittler und dem zu vermittelnden Dritten ein familiäres oder wirtschaftliches Naheverhältnis besteht.
Der Vermittler ist als Doppelmakler tätig.
Infrastruktur
und Entfernungen
Sie haben Interesse?
Kontaktieren Sie uns jetzt – wir beantworten gerne all Ihre Fragen rund um unsere Immobilienangebote. Auf Wunsch vereinbaren wir einen individuellen Besichtigungstermin, damit Sie sich selbst vor Ort ein Bild machen können.


Diese Immobilie ist vergeben – Ihre wartet vielleicht schon.
Wir freuen uns, dass wir diese Immobilie erfolgreich vermitteln konnten.
Doch vielleicht wartet Ihre Traumimmobilie bereits auf Sie! Werfen Sie gerne einen Blick auf unsere aktuellen Angebote.


















