Premium-Gewerbestandort mit Werkstatt, Hallen, Verkaufsflächen & Betriebswohnung
Beschreibung
Seltene Gelegenheit durch Standortverlagerung!
EINZIGARTIGE CHANCE FÜR UNTERNEHMER
Eine Immobilie dieser Qualität und Ausstattung wird nur selten verfügbar:
Das etablierte Hydraulikzentrum Mrak verlegt seinen Standort – dadurch eröffnet sich für Sie die Möglichkeit, einen voll funktionalen Gewerbebetrieb mit umfangreicher Infrastruktur zu übernehmen.
Ein Standort, der sofort einsatzbereit ist und ideale Voraussetzungen für nachhaltigen Unternehmenserfolg bietet.
Die Liegenschaft überzeugt besonders durch ihre außergewöhnlich großzügigen Außen- und Nutzflächen, die vielseitige Einsatzmöglichkeiten für Gewerbe, Logistik und Expansion bieten. Der weitläufige Platz ermöglicht eine optimale Befahrbarkeit, großzügige Lagerkapazitäten sowie komfortables Rangieren auch für größere Fahrzeuge.
FLÄCHENÜBERSICHT
- Nutzfläche: ca. 1500 m²
- Grundstücksfläche: ca. 3.528 m²
Großzügige Dimensionen ermöglichen effiziente Betriebsabläufe sowie Erweiterungs- und Entwicklungspotenzial.
PERFEKT DURCHDACHTE AUFTEILUNG
Das Gewerbeobjekt vereint Funktionalität mit klar strukturierten Arbeitsabläufen:
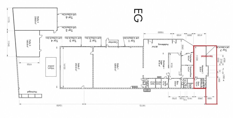
Erdgeschoss
- Repräsentativer Verkaufsraum mit großflächiger Verglasung
- Büro- und Verwaltungsbereiche
- Ersatzteillager
- 4 Hallen mit mehreren Einfahrtstoren
- Sanitär- und Nebenräume
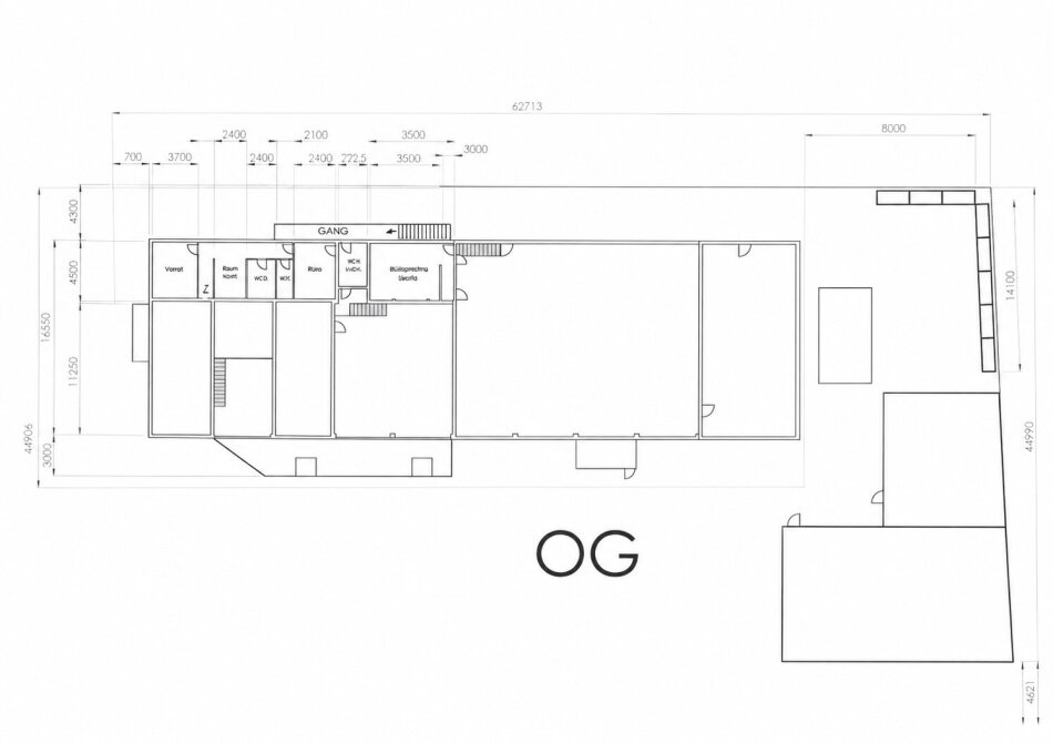
Obergeschoss
- Betriebswohnung
- Aufenthaltsraum für Mitarbeiter
- Büro
- Lager
Außenbereich
- Großzügige Freiflächen
- Waschplatz
- Optimale Zufahrts- und Rangiermöglichkeiten (auch für größere Fahrzeuge)
Die bestehende Betriebsausstattung bietet ideale Voraussetzungen für technische Betriebe:
Werkstatt
- Hallenkran (10 Tonnen)
- Hallenkran (3,2 Tonnen)
- Druckluftanlage mit 2 Kompressoren
- Montagegrube
- Werkbänke
- Waschplatz
Weitere Ausstattung
- Ersatzteillager
- Verkaufspult
- strukturiertes Lagersystem
- Verkaufsraum
Eine Ablöse für Maschinen, Geräte und Einrichtung ist nach Vereinbarung möglich.
TECHNISCHE AUSSTATTUNG
- Ölzentralheizung
- Radiatoren
- Deckenheizung in Teilbereichen
LAGE & ERREICHBARKEIT
Der Standort befindet sich in einer etablierten Gewerbezone mit sehr guter Verkehrsanbindung.
Optimal geeignet für:
- Werkstattbetriebe
- Handel & Vertrieb
- Serviceunternehmen
- Lager & Logistik
MIETKONDITIONEN
- Langfristige Vermietung ausdrücklich erwünscht
- Einzug nach Absprache
- Ablöse nach Vereinbarung
- Vermietung ausschließlich an Unternehmen mit einwandfreier Bonität
IHR VORTEIL AUF EINEN BLICK
✔ Sofort betriebsbereit
✔ Hochwertige, bestehende Infrastruktur
✔ Großzügige Flächen und optimale Logistik
✔ Repräsentativer Verkaufsbereich mit Sichtbarkeit
✔ Seltene Verfügbarkeit in dieser Größenordnung
FAZIT
Ein leistungsstarker Gewerbestandort mit hervorragender Substanz und vielseitigen Nutzungsmöglichkeiten.
Die Vermietung erfolgt ausschließlich an wirtschaftliche Unternehmen mit einwandfreier Bonität, die dieses Betriebsareal langfristig nutzen möchten.
Die Vermittlung und Koordination sämtlicher Anfragen erfolgt ausschließlich über unser Büro.
Eine Besichtigung ist jederzeit nach Terminvereinbarung möglich.
Wir weisen darauf hin, dass zwischen dem Vermittler und dem zu vermittelnden Dritten ein familiäres oder wirtschaftliches Naheverhältnis besteht.
Der Vermittler ist als Doppelmakler tätig.
Infrastruktur
und Entfernungen
Sie haben Interesse?
Kontaktieren Sie uns jetzt – wir beantworten gerne all Ihre Fragen rund um unsere Immobilienangebote. Auf Wunsch vereinbaren wir einen individuellen Besichtigungstermin, damit Sie sich selbst vor Ort ein Bild machen können.


Diese Immobilie ist vergeben – Ihre wartet vielleicht schon.
Wir freuen uns, dass wir diese Immobilie erfolgreich vermitteln konnten.
Doch vielleicht wartet Ihre Traumimmobilie bereits auf Sie! Werfen Sie gerne einen Blick auf unsere aktuellen Angebote.







































